減振器簡介" src="/uploads/allimg/190428/11122Ic4-0.png" style="transition: all 0.3s; text-size-adjust: none; margin: 0px; padding: 0px; border: none; vertical-align: middle; max-width: 100%; -webkit-tap-highlight-color: rgba(0, 0, 0, 0); height: 400px; width: 600px;" />
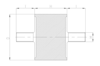
JNCC型橡膠減振器是由一頭配螺栓的鋼板,一頭配內絲的鋼板,中間圓柱形橡膠體組成,可壓縮和伸長,具有結 構簡單,安裝方便,耐油,耐酸堿,抗老化,耐溫等性能,廣泛草莓视频色板APP下载於電子儀器,儀表,設備櫃內,也可以用風 機,水泵,冷水機組等。由上下鋼板完全分離,不需另加附件即可減斷聲橋傳遞,是一種非常實用的減振器,尤 其適用於電子儀器儀表。
JNCC型橡膠減振器尺寸表:


橡膠草莓在线观看网站器之所以如此被廣泛的運用,是因為它有效的利用了橡膠的如下諸多特性:
(1)橡膠具有高彈性和黏彈性;
(2)與鋼鐵材質相比,橡膠的彈性變形很大,彈性模量很小;
(3)橡膠的衝擊剛度大於動剛度,動剛度又大於靜剛度,有利於減少衝擊變形和動態變形;
(4)應力-應變曲線為橢圓形滯後線,其麵積等於各個震動周期轉變為熱量的振能(阻尼),可通過配方設計調整之;
(5)橡膠為不可壓縮性材料(泊鬆比為0.5);
(6)橡膠形狀可以自由選擇,硬度可以通過配方設計加以調整,可以滿足不同方向的剛度和強度的要求。
載荷範圍
載荷範圍:245N-35040N;位移範圍有二種:0-75mm、0-150mm;
結構
結構采用外挑管,消除音隙非常方便,且有螺紋防鬆設置;
連接管
長短連接管采用左右螺紋,安裝距離詷量為40mm,且可現場調整,並設有螺紋防鬆設置;
間隙小
兩端接口采用鉸接,有效地消除了雙向使用時的間隙;
載荷刻度
上刻度板上增設了載荷指示刻度,使調節載荷、工作載荷一目了然。
為了減少前麵提到的路麵對車輛的振動和衝擊,需要彈簧把這些吸收振動和衝擊的能量,彈簧在懸架中就是一個儲能元件,但是暫時儲存起來還不行,還要把這些對車輛乘坐舒適性和操縱穩定性不利的能量消耗掉,這是就輪到減振器登場了,液壓式減振器的工作原理是當車架與車橋作往複相對運動,而活塞在缸筒內往複運動時,減振器殼體內的油液便反複地從一個內腔通過一些窄小的孔隙流入另一內腔,此時,孔壁與油液間的摩擦及液體分子內摩擦便形成對振動的阻尼力,使車身和車架的振動能量轉化為熱能,而被油液和減振器殼體所吸收,然後散到大氣中。簡單的說就是,將動能轉化為熱能。如果減振器在試驗台連續運轉幾分鍾,減振器貯油缸外壁會變得非常熱,甚至燙手。
鬆江波紋草莓在线观看网站器需換一個行嗎?美標限位伸縮器是采用ANSI/ASMEB16.5法蘭標準加工製作的限位伸縮接頭或者傳力接頭產品,適用於輸送海水、淡水、冷熱水、飲用水、生活汙水、原油、燃油…
開車如何保護kw電感草莓在线观看网站器質量好嗎?空氣彈簧草莓在线观看网站器承受載荷變化,係統固有頻率大致不變,因此具有變剛度特性,所以在隔振裝置設計時不必過重考慮設備重心承載能力大,自身重量…
豐田佳美用什麽貝斯特草莓在线观看网站器安裝說明書草莓在线观看网站器通過空氣實驗後,應進行氣密性實驗,實驗介質為枯燥、潔淨的空氣,也可根據用戶需求運用氮氣或其它惰性氣體,測驗設備為電動泵(或…

BE-120柴油機橡膠草莓在线观看网站器 BE120 橡膠隔振器 該產品簡單實用的 橡膠草莓在线观看网站器 具有良好低頻草莓在线观看网站效果..

產品介紹: JB型 彈簧草莓在线观看网站器 本體材質分為.殊強化尼龍及球狀鑄鐵。.殊強化尼龍材質為尼龍加..

JBQ-900-A幹式變壓器空氣草莓在线观看网站器 Dry type transformer air shock absorber 上海 草莓视频深夜释放草莓在线观看网站器 有限公司官方網..

GJ型社會在發展,環境在提高,對環境保護要求越來越高,由動力設備的管道引起的振動和噪聲..
1.彈簧草莓在线观看网站器外殼 殼體是減振元件的支撐。 長期的負載和安全性非常重要。 它對強度有很高的要求。 目前,市場上有兩種會誤導客戶的趨勢: 1.為...
奧迪用什麽垂直草莓在线观看网站器總成怎麽樣?市麵上一般有空氣彈簧草莓在线观看网站器也叫(氣墊草莓在线观看网站器)、彈簧草莓在线观看网站器、橡膠草莓在线观看网站器三大類!三大類草莓在线观看网站器的性能對比:1、就成...
橡膠草莓在线观看网站器更換要換一對嗎?1、周邊無明顯震動;2、周邊沒有磁場影響;3、安裝場所路麵整平,自然通風優良;4、禁止腐蝕化學物質試件的實驗或存儲;5、禁止...
設備彈簧草莓在线观看网站器具備頻率低、草莓在线观看网站大一點的雙重優勢,及其鋼彈簧原先的震幅。在文化休閑場所的草莓视频色板APP下载:轉速高的低音炮音箱音箱,音樂的穿透性特別強。傳...
捷達後草莓在线观看网站器拆裝方向不靈了咋辦?大多數波紋草莓在线观看网站器的工作溫度在400℃以下,碳素結構鋼、低合金結構鋼和奧氏體等材料能夠勝任。草莓在线观看网站器的使用壽命...
在選擇彈簧草莓在线观看网站器時,應該根據機器設備的淨重量來選取合適型號和規格。一般而言,彈簧草莓在线观看网站器應該承受高於20毫米的機械設備表麵變小量,但不得超過...
離心式水泵彈簧草莓在线观看网站器的操作步驟說明如下:彈簧采用純煆造方法製成,具有很好的彈性,可以用於小水泵的密封性和草莓在线观看网站。安裝時須注意,不能出現偏位...
廈門威朗15s草莓在线观看网站器平麵軸承怎麽換?減振器的檢測辦法有哪些?減振器減振性能的好壞,要經過減振實驗來審定。減振實驗通常隻在新設計試製減振器時才停...